Moderné, inovatívne a funkčné architektonické riešenia.
SK / EN

ARCHITEKTÚRA
URBANIZMUS
STUDIO

Zanechajte nám odkaz! WFlRYVc1bWIwQmpiMjF3WVhOekxuTnI=
Ing.arch.Matej Grébert
Ing.arch.Juraj Benetin
Sídlo kancelárie:

Compass, s.r.o.
Miletičova 5/B
821 08 Bratislava

Fakturačné údaje:

Compass, s.r.o
Bajkalská 29/E
821 01 Bratislava
IČO: 36291986
IČ DPH: SK2022170535

Residential Mixed-use Office Public spaces

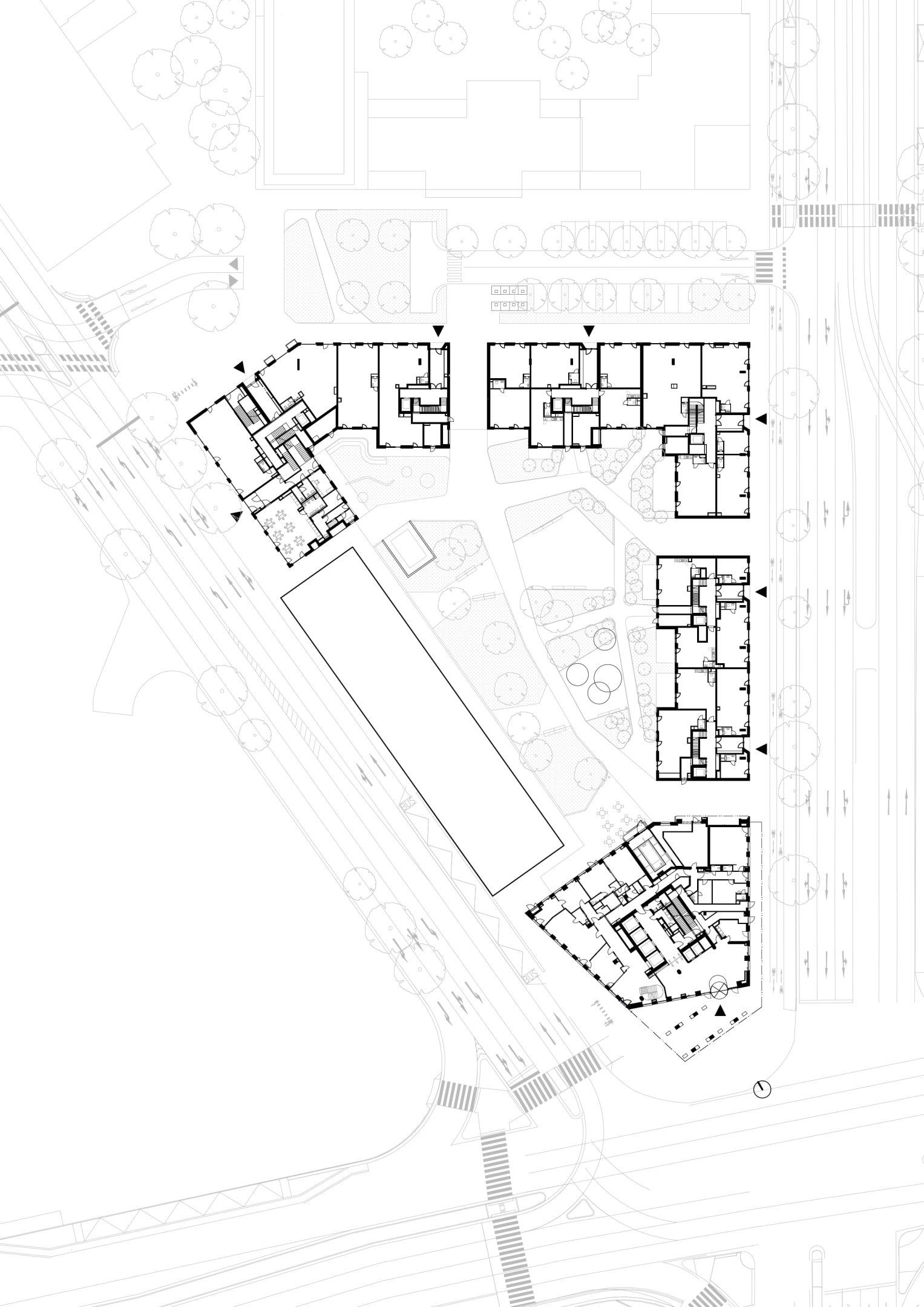
Dielo nadväzuje na bohatú históriu bývalého priemyselného areálu cvernovej továrne a začína odvíjať nový príbeh, ktorý nám toto výnimočné miesto pred očami mení na vitálnu bratislavskú štvrť pre moderný a kvalitný životný štýl. Podobne ako pri prvej etape, aj ZWIRN 3 vyrastá okolo zeleného dvora, ktorý sa stal obľúbenou súčasťou celého komplexu.

Inšpiráciou pre urbanistickú koncepciu Zwirnu sa stalo susediace Dulovo námestie a jeho okolie so svojím radiálnym urbanizmom. Zwirn koncept Dulovho námestia a jeho okolia preklopil na opačnú stranu do areálu bývalej továrne.

Novovzniknutá štruktúra tak prirodzene nadväzuje na existujúce ulice, predlžuje ich alebo sa s nimi plynulo prepája. Nová bloková štruktúra prináša otvorenie priečnych priehľadov a prepojení, redukciu dopravy a správny pomer verejných a poloverejných priestorov.

Hlavné hmotové riešenie bloku Zwirn3  vychádza z tohoto urbanistického konceptu.

Z pohľadu architektonického výrazu sa jedná a pevný mono materiálový mestský blok. Artikulácia fasád je kombináciou lodžiových a okno -  balkónových častí, ktorých poloha a rozsah reaguje na charakter okolia. Smerom do rušnej ulice Košická je orientovaný lodžiový systém. Balkónový systém je orientovaný do kľudnejšieho vnútrobloku a bočnej slepej komunikácie.

Použité architektonicko-stavebné riešenia v exteriéroch i interiéry bytových domov  kladú dôraz na striedmosť výrazových prostriedkov, zjednocovanie dizajnových riešení, kvalitu, pravosť a trvácnosť použitých materiálov.

Materiálovo farebná homogenita na fasádach objektu a v interiéry  spoločných priestorov bytových domov dotvára charakter solídneho mestského bloku, zútulňuje a vytvára pomyselné pozadie budúcich nánosov života svojich užívateľov.

Fasáda objektu je v polohe hlavných vstupov do jednotlivých sekcií dotvorená veľkoplošnými keramickými mozaikami. Svojim výtvarným spracovaním oživujú a identifikujú každý jeden vchod.

Autori:
Ing. arch. Juraj Benetin,
Ing. arch. Matej Grébert,
Ing. arch. Daniel Bartoš
Ing. arch. Peter Dostál 

Krajinná architektúra: Atelier DIVO
Umelecké diela: Mgr. art. Veronika Selingerová

Zastavaná plocha: 3232 m2
Úžitková plocha: 32 100 m2
Plocha komerčných priestorov: 2 214 m2 
Počet podlaží 6 - 9 NP / 3 PP
Počet bytov + Apartmánov: 155 + 40 
Počet parkovacích miest 560

Investičný náklad: 75 mil. €
Návrh: ... - ...
Realizácia: 06/2022 - 12/2024

Developer: YIT ZWIRN 3 
Hlavný zhotoviteľ: YIT Slovakia

Fotografie:
Dávid Palička,
YIT,
Daniel Bartoš